Castillo Bienes Raíces logo
VENTA EDIFICIO COMERCIAL EN EL CENTRO
Licenciado Benito Juárez 355 PteSKU: 1_2301
$4,900,000
Recámaras0
Baños2
Estacionamientos3
Construcción558 m²
Terreno405 m²
Antigüedad1982

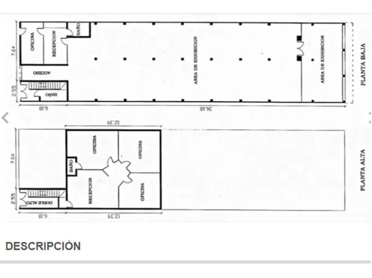
Local comercial céntrico, con oficinas en planta alta. Cuenta con 405 m2 de terreno (con doble frente), y 557.77 m2 de construcción.

  • Terreno regular (frente 9.59 m x 42.25 de fondo)
  • Doble frente por Callejón Guadalupe Victoria.
  • Construido en 2 plantas.

Planta baja: Local, 3 cajones de estacionamiento, área de exhibición techada y área de exhibición cerrada, medio baño y 2 oficinas tipo privado, una de ellas con salida al callejón.

Planta alta: oficinas 152.52 m2. Acceso por callejón Guadalupe Victoria. Cuenta con recepción con escritorios y libreros de tablaroca, 3 oficinas con libreros empotrados y medio baño.

Piso cerámico y techo cielo raso, cortinas metálicas en fachada principal Av. Juárez

UBICACIÓN GOOGLE EARTH: https://earth.google.com/web/search/Los+Mochis,+Sinaloa/@25.79062514,-108.9936314,13.38210666a,236.25228336d,35y,-0h,0t,0r/data=CigiJgokCTrnyFDwpzNAETfnyFDwpzPAGf4qzNR9NklAIQErzNR9NknAOgMKATA

UBICACIÓN GOOGLE MAPS: https://maps.app.goo.gl/uVV3MVLJJZAjpRWz8

Note: Solicita cita con un Asesor


(DoRam)

Detalles financieros

Revisa la información económica clave de esta propiedad.

Precio Venta
$4,900,000

Ubicación

Licenciado Benito Juárez 355 Pte

El mapa se cargará automáticamente al llegar a la sección de detalles.